Community Design Guides
LOCAL COUNCIL
Multipurpose rooms, maternal child health rooms, and kindergarten rooms imagined as simple perspective sketches.
These diagrams were created for Mitchell Shire Council to showcase the possibilities and desired design guidelines for their upcoming community infrastructure projects.
-
Mitchell Shire Council is in the process of developing some impressive documents to communicate their vision for community spaces in their LGA.
-
These sketches are deliberately artistic in nature to avoid being prescriptive to future designers. It was never the intent for these sketches to be seen as the “one and only right answer” to any design problem - rather a loose guide toward a preferred outcome.
Audrey Whisker’s experience designing and documenting education facilities provided her with the background and knowledge to complete these sketches quickly and accurately.
The colours were chosen to match the colour scheme of the future council document(s).
-
Completed in 2023
Mitchell Shire Council
Small Multipurpose Room
Small Multipurpose Room - Floor Plan
Maternal Child Health Room
Maternal Child Health Room - Floor Plan
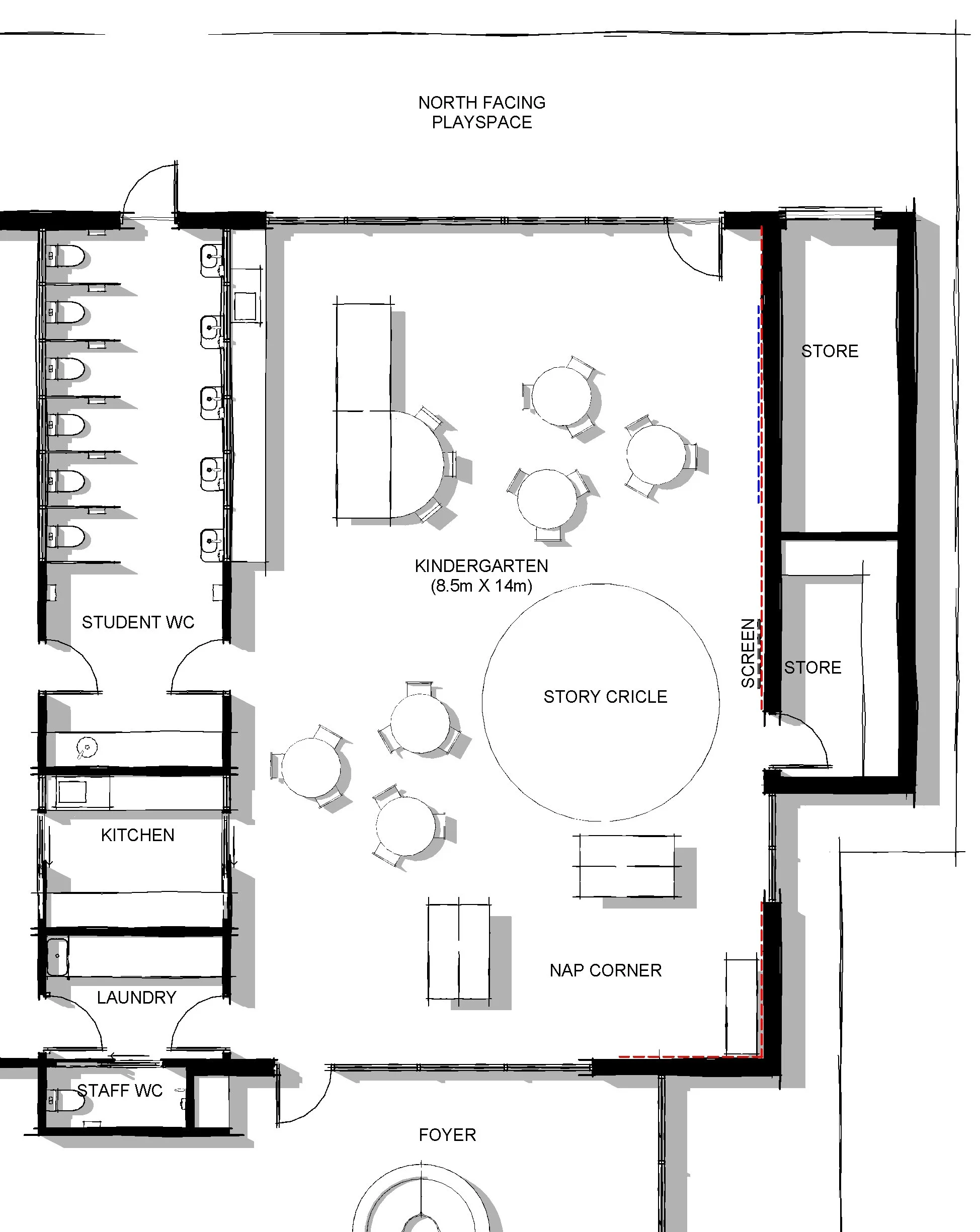
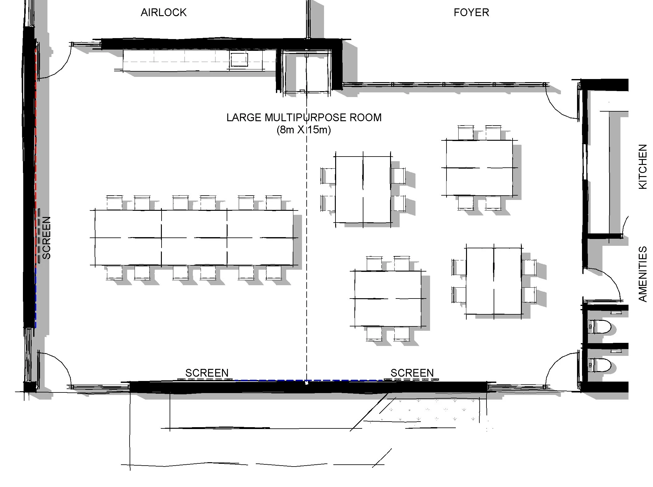
Flexibility can be enhanced through connections to programmed outdoor areas, access to storage, access to amenities, and by their size being fit-for-purpose for multiple uses.
Whisker Architecture
Large Multipurpose Room, Typical Two-Room Configuration
Large Multipurpose Room, Typical Two-Room Configuration - Floor Plan
Large Multipurpose Room, Typical Two-Room Configuration
Large Multipurpose Room, Amphitheatre Seating
Large Multipurpose Room, Amphitheatre Seating - Floor Plan
“Community Design Guides”
Jaimie, Client
Mitchell Shire Council
“If you want to go quickly, go alone. If you want to go far, go together.”
African Proverb
Kindergarten Room
Kindergarten Room
Kindergarten Room - Floor Plan
Kindergarten Room - As Multipurpose
Our Experience and Yours.
CAPABILITY STATEMENT
We serve Victoria’s educators and employers who are passionate about empowering their communities to Live, Learn & Work [in] Their Value.
We do this by modelling their pedagogical visions as physical spaces, replacing everyday frictions with daily delight.
Contact us today so we can help create a learning environment to support your teams’ educational vision.

